NO RETURNS OR EXCHANGESThe Onan QG 4000i RV generator is ideal for light and medium-duty RV applications. This CARB 2024 certified generator set features low fuel consumption, single-side servicing, and quiet operation (63db at no load, 66db at half load). It is 13% lighter, has returnless EFI, and 25% larger oil capacity which means improved maintenance intervals. Not only does the QG 4000i allow RVers to have power wherever they go, but it also provides a peaceful, quiet journey. For technical images and dimensions refer to the the installation manual. The product you selected is not returnable. Before purchasing please: 1. Make sure the generator will physically fit 2. Determine it meets your power needs by wattage and amperage 3. Product is the right fuel type |
|
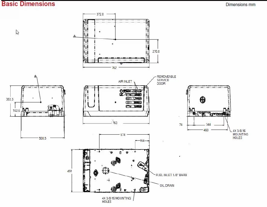
• 60 Hz, 120 V, 30A breaker • Computer-controlled variable speed operation matches engine speed to load demand, minimizing noise level and vibration. • 30.0 in x 20.3 in x 14.0 in • No fuel return line necessary - EFI gasoline • EVAP model for specialized applications • High power quality with inverted electrical output for sensitive RV loads. • J1939 communications capable • Low oil shutdown switch, high oil temperature sensor • Quietest generator sets of their size. • Completely enclosed with muffler, quick and easy to install. • 3-year limited warranty • Low fuel consumption |