location_pin Get Directions
451 Fairbairn Road, Bobcaygeon, Ontario, Canada K0M 1A0
 

Brabus

ID # 35338312

Northlander Traditional Coaldale

Call for Price
Overview

Northlander Traditional CoaldaleLetting details shine

Fabrication within a controlled environment along with Northlanders best-practices and policies, ensure rigid standards in accuracy are attained in all aspects. Because our building materials are always kept indoors, weather issues and constraints are eliminated and stability of materials increased. Within these climate controlled conditions, details shine!

Custom cabinetry, created using CNC technology, is always showroom quality; trims and moldings are mitered to perfection. The benefits of factory controlled manufacturing can be seen in every Northlander. Each impeccably designed for entertaining friends and family.

Unit Details

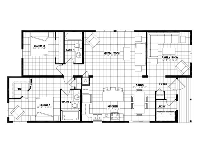
2 bed   |     2 bath   |     1249 sq.ft
2 Piece Unit, Manufactured Home
52' x 26' Exterior

 

Specifications
Model
Traditional Coaldale
Category Name
Trailers
Year
2025
Sale Type
New
Manufacturer
Northlander
Plan Number
5226-010
literature

Name

Link

Manufactured-Home-Spec Download
Coaldale Floorplan Download

 

Documents