location_pin Get Directions
451 Fairbairn Road, Bobcaygeon, Ontario, Canada K0M 1A0
 

Brabus

ID # 35337619

Northlander Luxe Lakota

Call for Price
Overview

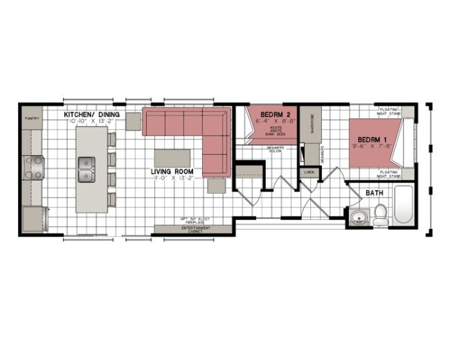
Northlander always prides itself on being the leader in this industry and the Luxe – Signature Series allows you to experience first-hand, all the reasons why. Offering bold and inspiring designs with surprising features, the Luxe is an example of Northlander’s ingenious craftsmanship. 

Clean, cool and captivating architectural lines, inside and out, create a contemporary look like no other – a look that we know you will fall in love with the moment you step inside. This is the retreat you don’t just live in – you evolve in. Your Life …Your Luxe!

Unit Details

2 bed   |     1 bath   |     539 sq.ft
Single Wide, Park Model
41' x 13'-9" Exterior

 

Specifications
Model
Luxe Lakota
Category Name
Trailers
Year
2025
Sale Type
New
Manufacturer
Northlander
Plan Number
25-4835-2
literature

Name

Link

Park-Model-Specs Download
Lakota Floorplan Download

 

Documents